設計師:夏政杰(江北旗艦店 主案設計師)
案例說明
簡美風格的特色是將設計的元素、色彩、照明、原材料簡 化到最少的程度。但是對材料的色彩質感要求很高。不加過多修飾與約束的美式風格, 散發出迷人的休閑式浪漫, 既有著歐式風格的華麗與貴氣, 又剔除了更多 羈絆,同時又能尋找文化根基的新的懷舊,貴氣而不失自在與隨意。簡美更是以功能性為優先考慮,適合追求舒 服,兼顧優雅,既注重起居品質,又不過分張揚的人群。
優缺點分析
優點:
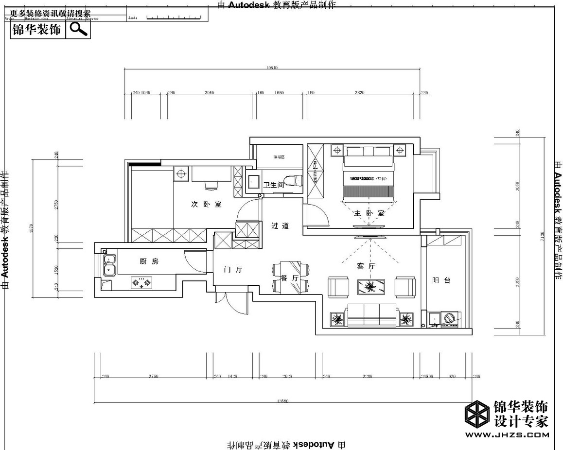
整體空間區域劃分合理 南北通透
缺點:
廚房空間不足放冰箱 衛生間空間偏小 陽臺偏大
原始結構圖↓
平面布置圖↓
鳥瞰圖↓
效果圖↓
效果圖↓
效果圖↓
想了解更多弘陽愛上花園戶型資料么?
錦華裝飾準備了弘陽愛上花園各戶型全套設計方案、工程量報價、參考效果圖、主材搭配方案.歡迎您和網絡客服取得聯系,預約來店面詳細溝通.錦華裝飾,設計專家!.
江蘇家裝示范品牌
代表地區優秀設計聲音
集25年工程管理經驗之大成
省時、省力更省心
| 走進錦華 | 設計團隊 | 作品列表 | 戶型解析 | 裝修百科 |
關注錦華公眾號
|
瀏覽手機官網 |
全國熱線 025 86550815 |
||||||||||
| 新聞列表 | 錦華文化 | 堂杰國際設計 | 1865旗艦店 | 極簡 | 中古 | 秦淮金茂府 | 常見問題 | ||||||||||
| 全國分公司 | 錦華招聘 | 河西旗艦店 | 鼓北旗艦店 | 法式 | |||||||||||||
| 錦華簡介 | 聯系我們 | 城東旗艦店 | 江寧旗艦店 | 歐式古典 | 北歐 | 中交錦方 | |||||||||||
| 資質榮譽 | 法律聲明 | 江北旗艦店 | 江浦店 | 美式田園 | 新古典 | 溧水玖宸府 | |||||||||||